Le Rêve - A Home for the NRI Dreamer
Area: 5000 sq.ft.
Location: Baner, Pune
Le Rêve is a 5,000 sq.ft. home in Baner, Pune, designed for an NRI couple who wanted to bring their American dream home to India. Inspired by colonial American architecture, the residence blends classic design with modern functionality. It features distinct public and private zones, with thoughtful inclusions like a two-car garage, home office, mudroom, and an open-plan kitchen that serves as the heart of the home. The backyard, complete with an outdoor cooking area and an amphitheater under a peepal tree, is tailored for intimate gatherings and festive celebrations.
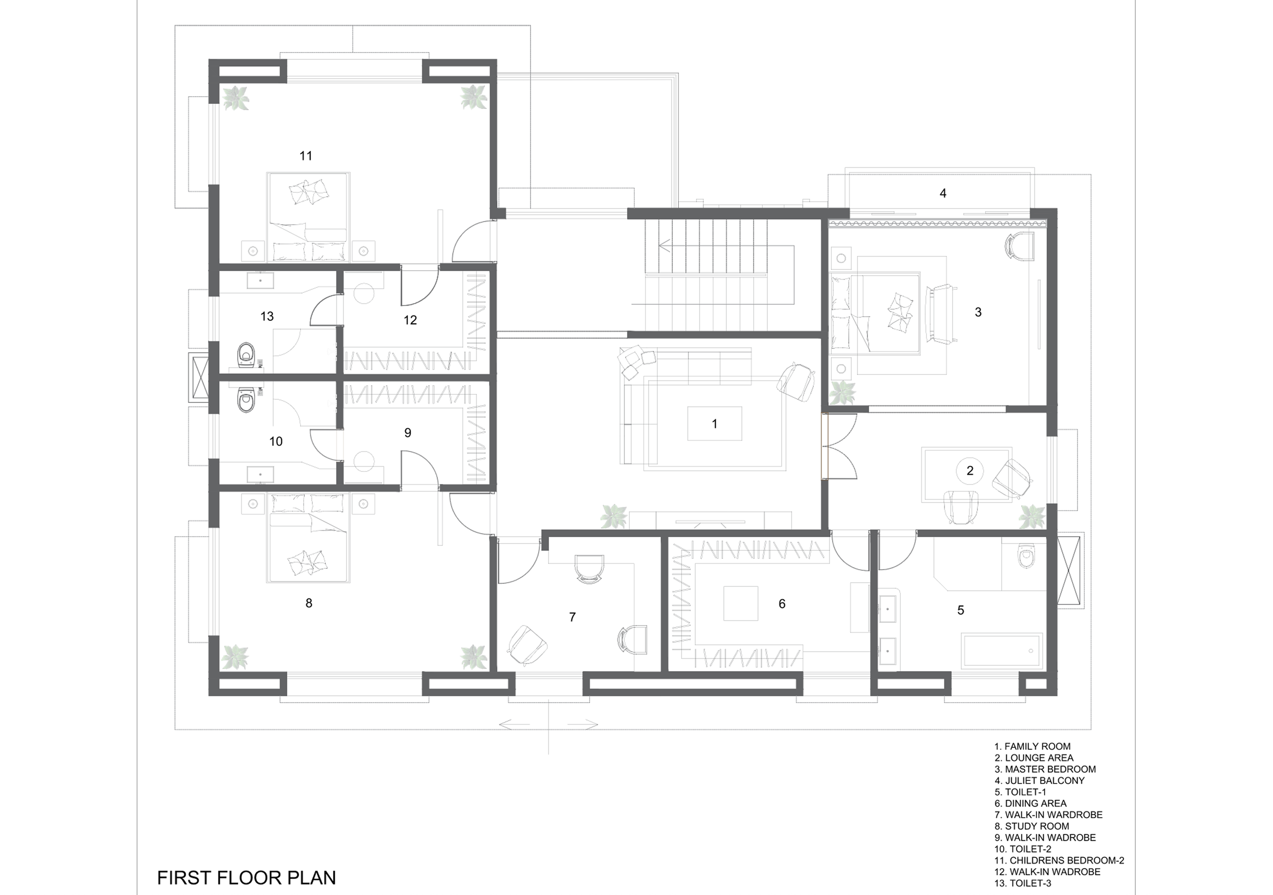
The upper level includes spacious bedrooms, a family lounge, and a cozy attic with a game room and laundry area. Large windows, walk-in wardrobes, and a sloping shingled roof bring in natural light and character. With clay brick cladding, Georgian windows, and elegant detailing, Le Rêve is a warm, inviting, and timeless home. It’s a true reflection of its owners' lifestyle—where global experiences meet rooted sensibilities.






